更新時間2026年02月11日#FUK2080B
住宅公寓
放售
【54萬港幣|坐擁天神收租盤】 福岡市中心|九州最強商業區 天神 ,6樓連租約單位|9年長期租客 行 4 分鐘到天神站+商圈, 全包 HKD 54 萬,即買即收租
徒步 4 分鐘到「天神」站同商圈
地區 |
福岡
中央區
|
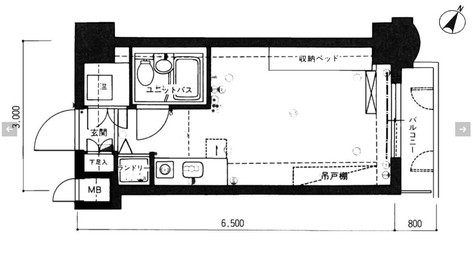
面積 |
室內 209.89 呎+露台 21.95 呎 |
落成年份 |
1991年 |
交通 |
徒步4分鐘
到
天神站
|
樓層 |
14 層中 6 樓 |
總價 (包括開支) |
1068.00萬円 (約港幣54.00萬) |
售價 |
980.00萬円 (約港幣48.00萬) |
現況 |
連租約 |
租金 |
42000日元/月 |
表面回報率 |
5.1% |
實際回報率 |
4% |
推薦理由
點解一定要揀天神
福岡心臟地帶=九州最多人流
百貨、商場、地下街一齊聚集
天神 Big Bang 大型重建進行中
商業面積擴大、就業增加,人流同需求只會愈來愈多
【推薦理由】
天神係福岡最大商業+娛樂區,重建計劃持續推進,地段潛力高
新防震電梯大樓,多戶數大型物件,流通性好
6樓中層收租單位,住得舒服又好租
9年長期租客,2016年入住至今
40歲左右|有工作|有保證公司,穩定度高
徒步 4 分鐘到「天神」站同商圈
岩田屋|VIORO|PARCO|叁越|大丸|天神地下街
Apple、無印、Nike 全部近,真・核心商圈
54萬港幣就買到天神收租盤,真係少見